Aller à :

  • Aller à la recherche
  • Aller au menu principal
  • Aller au contenu
0
  • Accueil
  • Biens à vendre
  • Biens vendus
  • Biens à louer
  • Biens loués
  • Estimer votre bien
  • Notre agence
  • Notre équipe
  • Recrutement
  • Contact
0
VotreRecherche
Dans un rayon de
  1. Immobilier Paris 11, 12 & 20
  2. Vente
  3. Seine saint denis
  4. Bagnolet
  5. Appartement
  6. T3
  7. Appartement avec terrasse et jardin dans residence de standing de 2012
Vendu
Réf : 1414C
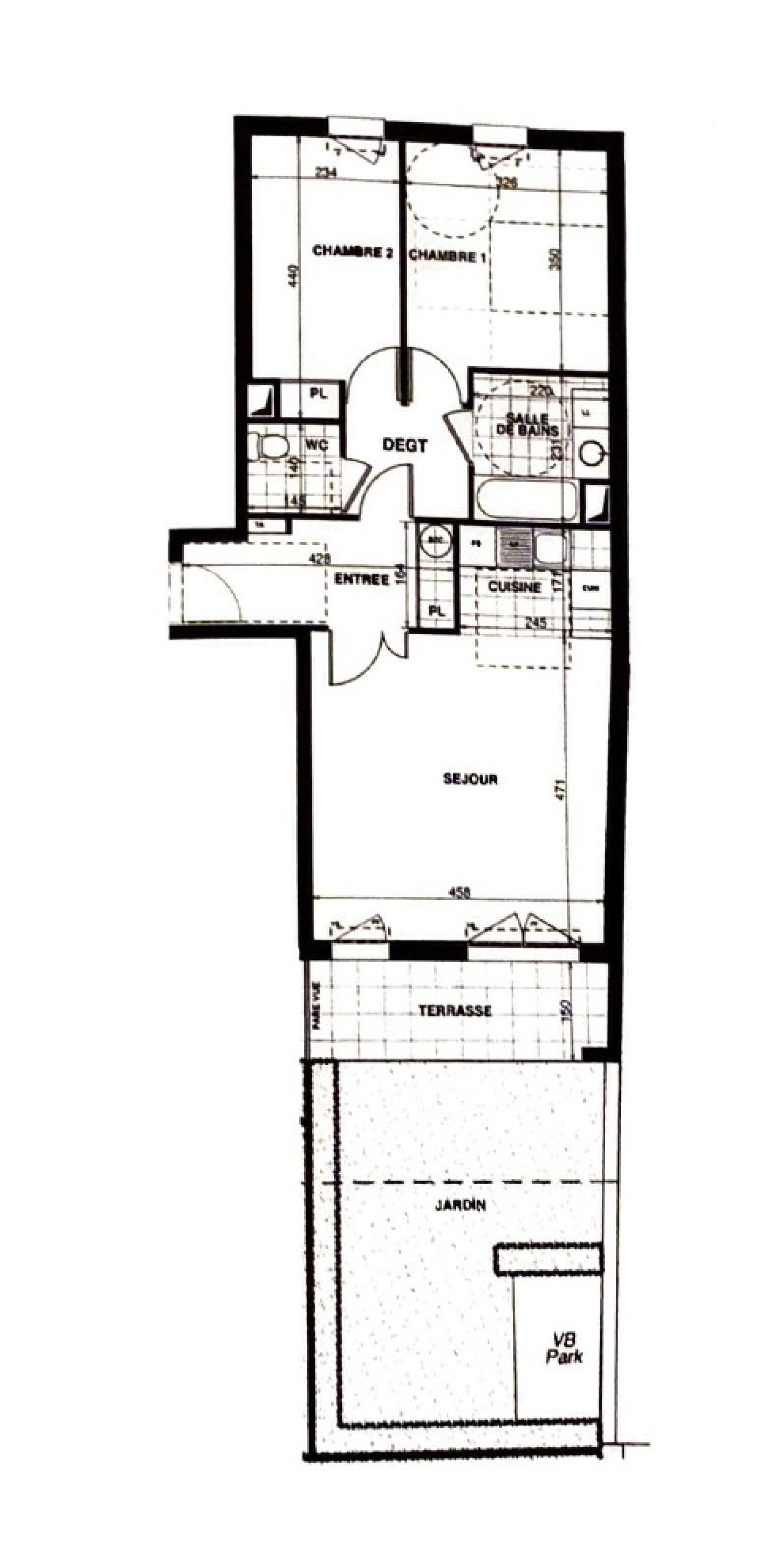
Appartement 65 m²
Nombre de pièces 3
Nombre de chambres 2
Nombre de salles de bain 1

Appartement avec terrasse et jardin dans résidence de standing de 2012 Bagnolet (93170)

JACONELLI IMMOBILIER vous propose, dans une résidence de standing de 2012, un appartement traversant en double exposition (sud-est/nord-ouest), très bien agencé, de 3 pièces principales d'environ 65m² avec une terrasse et un jardin d'environ 29m², situé à quelques encablures du 20ème arrondissement sur la commune de Bagnolet. Idéalement placé, à seulement 650m de Paris, les lignes de métro 11 et 3, le tramway 3b le centre-ville et un grand centre commercial sont seulement à quelques pas de votre futur habitation. Ce logement en très bon état se compose d'une entrée avec rangements, d'une grande pièce de vie avec cuisine américaine, de deux chambres avec rangement, d'une salle de bains, d'un wc indépendant et d'un dégagement. En sus, possibilité d'avoir une place de parking boxable en sous-sol (+ 15000€).

  • Général
  • Détails +
  • DPE
  • Copropriété
  • Quartier
Caractérisque Valeurs
Code postal 93170
Surface habitable (m²) 65 m²
Surface loi Carrez (m²) 65 m²
Nombre de chambre(s) 2
Nombre de pièces 3
Nombre de niveaux 1
Ascenseur OUI
Vue Jardin
Caractérisque Valeurs
Nb de salle de bains 1
Cuisine Américaine
Mode de chauffage Electrique
Type de chauffage Convecteur
Format de chauffage Individuel
Interphone OUI
Terrasse OUI
Nombre de garage 1
Cave NON
Exposition Sud-Est
Année de construction 2012
DPE GES
Caractérisque Valeurs
Copropriété OUI
Lot n° 6
nombre de lots 39
Quote Part annuelle des charges 1 119,29 €
plan de sauvegarde NON
statut du syndic pas de procédure en cours
  • Commerces et santé
  • Loisirs
  • Ecoles
  • Transports
  • Pratique
Partager le bien
Nos outils
Imprimer Imprimer
Calculatrice financière

* Champ obligatoire

Partager l'annonce

* champs obligatoires

Les informations recueillies sur ce formulaire sont enregistrées dans un fichier informatisé par La Boite Immo agissant comme Sous-traitant du traitement pour la gestion de la clientèle/prospects de l'Agence / du Réseau qui reste Responsable du Traitement de vos Données personnelles. La base légale du traitement repose sur l'intérêt légitime de l'Agence / du Réseau. Elles sont conservées jusqu'à demande de suppression et sont destinées à l'Agence / au Réseau. Conformément à la loi « informatique et libertés », vous disposez des droits d’accès, de rectification, d’effacement, d’opposition, de limitation et de portabilité de vos données. Vous pouvez retirer votre consentement à tout moment en contactant directement l’Agence / Le Réseau. Consultez le site https://cnil.fr/fr pour plus d’informations sur vos droits. Si vous estimez, après avoir contacté l'Agence / le Réseau, que vos droits « Informatique et Libertés » ne sont pas respectés, vous pouvez adresser une réclamation à la CNIL. Nous vous informons de l’existence de la liste d'opposition au démarchage téléphonique « Bloctel », sur laquelle vous pouvez vous inscrire ici : https://www.bloctel.gouv.fr Dans le cadre de la protection des Données personnelles, nous vous invitons à ne pas inscrire de Données sensibles dans le champ de saisie libre.
Ce site est protégé par reCAPTCHA, les Politiques de Confidentialité et les Conditions d'Utilisation de Google s'appliquent.

Partager avec vos proches

Facebook Facebook
Messenger Messenger
Twitter Twitter
WhatsApp WhatsApp
LinkedIn LinkedIn
Copier le lien Copier le lien
Détail des diagnostics énergétiques
DPE GES
DPE ANCIENNE VERSION
Autres biens

Ces biens peuvent aussi vous intéresser

Maison

 VENDU par Notre Agence- Maison avec Jardin sur un terrain de 238m²

Romainville (93230)
Vendu
Voir le bien
Appartement

Copropriété 2018 Terrasse, Parking, 3 pièces - 74.21m² - parc à...

Romainville (93230)
Vendu
Voir le bien
Contacter l'agence
Jaconelli Immobilier

Notre agence vous accueille :
- Le lundi sur rendez-vous
- Du mardi au vendredi de 9h30 à 19h00
- Le samedi 9h30 - 18h00

Jaconelli Immobilier
01 88 40 30 40

14, Place de la Nation
75012 Paris

E-mail nation@jaconelli.fr
TRAD_MELTEM_voscoordonnees
TRAD_MELTEM_voredemande
Règlementation

* Champ obligatoire

Les informations recueillies sur ce formulaire sont enregistrées dans un fichier informatisé par La Boite Immo agissant comme Sous-traitant du traitement pour la gestion de la clientèle/prospects de l'Agence / du Réseau qui reste Responsable du Traitement de vos Données personnelles. La base légale du traitement repose sur l'intérêt légitime de l'Agence / du Réseau. Elles sont conservées jusqu'à demande de suppression et sont destinées à l'Agence / au Réseau. Conformément à la loi « informatique et libertés », vous disposez des droits d’accès, de rectification, d’effacement, d’opposition, de limitation et de portabilité de vos données. Vous pouvez retirer votre consentement à tout moment en contactant directement l’Agence / Le Réseau. Consultez le site https://cnil.fr/fr pour plus d’informations sur vos droits. Si vous estimez, après avoir contacté l'Agence / le Réseau, que vos droits « Informatique et Libertés » ne sont pas respectés, vous pouvez adresser une réclamation à la CNIL. Nous vous informons de l’existence de la liste d'opposition au démarchage téléphonique « Bloctel », sur laquelle vous pouvez vous inscrire ici : https://www.bloctel.gouv.fr Dans le cadre de la protection des Données personnelles, nous vous invitons à ne pas inscrire de Données sensibles dans le champ de saisie libre.
Ce site est protégé par reCAPTCHA, les Politiques de Confidentialité et les Conditions d'Utilisation de Google s'appliquent.

Se connecter
Espace propriétaire

Avis client

Adhérents

© 2026 | Tous droits réservés | Traduction powered by Google |

  • Nos honoraires
  • Plan du site
  • Mentions légales
  • Admin
  • Nos liens
  • Politique RGPD

Comme beaucoup, notre site utilise les cookies

On aimerait vous accompagner pendant votre visite. En poursuivant, vous acceptez l'utilisation des cookies par ce site, afin de vous proposer des contenus adaptés et réaliser des statistiques !

Paramétrer

Cookies fonctionnelsCes cookies sont indispensables à la navigation sur le site, pour vous garantir un fonctionnement optimal. Ils ne peuvent donc pas être désactivés.

Statistiques de visitesPour améliorer votre expérience, on a besoin de savoir ce qui vous intéresse !
Les données récoltées sont anonymisées.

?

Google Analytics

En savoir plus